Фото оборудования

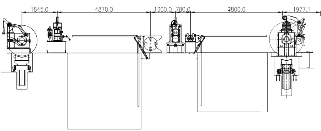
Схема оборудования

Тестирование аналогичного оборудования на заводе-изготовителе
Фото оборудования

Схема оборудования

Тестирование аналогичного оборудования на заводе-изготовителе
| Напряжение (В) | 380 |
| Частота (Гц) | 50 |
| Производительность (м/мин) | До 60 |
| Используемая гидравлическая жидкость | Гидравлическое масло №46 |
| Обрабатываемая ширина (мм) | 50-700 |
| Обрабатываемая толщина (мм) | 0,3-0,5 |
| Язык программного обеспечения | Русский, английский, китайский |
| Размеры приямков между агрегатами (мм) | 4000 х 1000 х 3000 |
| Габаритные размеры (мм) | 16 000 х 7000 х 2000 |
| Общий вес (кг) | 27 000 |